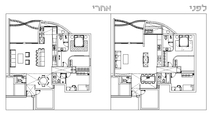
זוג ,שהופנה אלי דרך לקוחה שהיא בת משפחה של הזוג, ולהם 3 ילדים מתבגרים, ש-2 מהם כבר "עזבו את הקן" ונותר להתגורר עימם "בן הזקונים", החליטו לשפץ את דירתם ולהפוך אותה לדירה מעודכנת ומתוכננת המתאימה לצרכים הפונקציונליים החדשים. במסגרת ההתאמה לצרכים החדשים, נדרשה הסבה של חדר לחדר ארונות מרווח שישמש את יחידת ההורים. בנוסף, נדרש אזור ארוח מרווח לארוחות משפחתיות והגדלת המטבח.
הדירה בקומה גבוה ולה נוף פנורמי של כל גוש דן (מרשים ביותר בשעות הלילה), ולכן המלצתי היתה לאחד את חלל הסלון עם המטבח ולספח את אזור השרות למטבח.




