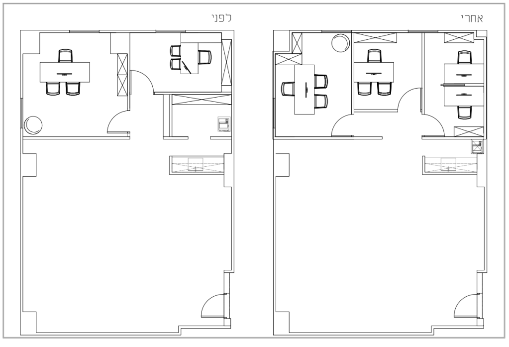
נתבקשתי על ידי זוג רו"ח שמשרדם צמח, לתכנן מחדש את חלל משרדי ההנהלה ולהוסיף שתי עמדות מנהלים למנהלי בקורת חדשים שהצטרפו. בהמשך לשיפוץ-תוכנן מטבח חדש ורוצף מחדש חלל המשרדים כולם.



נתבקשתי על ידי זוג רו"ח שמשרדם צמח, לתכנן מחדש את חלל משרדי ההנהלה ולהוסיף שתי עמדות מנהלים למנהלי בקורת חדשים שהצטרפו. בהמשך לשיפוץ-תוכנן מטבח חדש ורוצף מחדש חלל המשרדים כולם.


