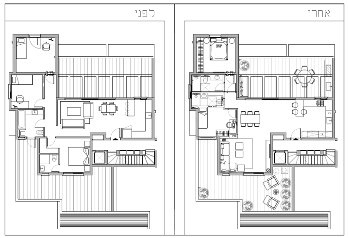
קבלן בפרוייקט תמ"א 38 בנה בניין בחולון. בבניין פנטאהוז למכירה ונדרשתי לבצע חלוקה של חלל הפנים לדירת 3 חדרים עם שני חדרי מאסטר.
האתגר הגדול בבנייני תמ"א 38 הינו מיקום הממ"ד וקירות ההדף הסמוכים אליו, שאינם מאפשרים שינויים והזזות. במקרה הנ"ל אדריכל הבנין תכנן את הפנטהאוז בחלוקת פנים שהשאירה חלל ציבורי מאוד מצומצם, לפיכך נדרשתי לתכנן מחדש את חלוקת הפנים.
